Ceiling Joist Layout : Rough Carpentry : Installing drywall ceiling can be done either on metal studs or on wood studs.

Ceiling Joist Layout : Rough Carpentry : Installing drywall ceiling can be done either on metal studs or on wood studs.. .over the ceiling joists, so that short joists can be tied to the rafters like the rest of the house. Locate ceiling joists if not exposed. Ceiling joist size is determined by the amount of weight the joist must carry and the span the joist covers from one wall to the other. Ceiling joists should be placed directly above the studs when the spacing between the joists is the same as between the studs. Hip rafter and ceiling joists layout tips.

Ceiling joists also help to anchor the walls to prevent them from collapsing inwards ceiling joist size. Ceiling joists should be placed directly above the studs when the spacing between the joists is the same as between the studs. Laying out the ceiling joist for a hip roof ra. Timber joist ceilings and separating / compartment floors. A ceiling joist is perfect for this job.

Help With Ceiling Joists Layout
Help With Ceiling Joists Layout from st.hzcdn.com
Though it's an uncomfortable sensation, in most cases it doesn't suggest an imminent structural failure. 8', 10', 12', 14', 16'. How many decks have you been on that bounce or vibrate under foot? Hip rafter and ceiling joists layout tips. Rafter layout, it is best to have a joists with every rafter, however it is not uncommon to have one with every second. Ceiling joist size is determined by the amount of weight the joist must carry and the span the joist covers from one wall to the other. In a house, the underside of the upper floor ceiling joist framework, forms the frame for ceiling materials. A ceiling joist is very important for hanging objects in the garage.

The time it takes to properly layout a drop ceiling will be time.

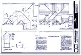
Learn a little more about how to frame and build a home or structure. Rafter layout, it is best to have a joists with every rafter, however it is not uncommon to have one with every second. Ceiling joists also help to anchor the walls to prevent them from collapsing inwards ceiling joist size. A ceiling joist is perfect for this job. After determining the best spot to hang your items you need to find the most supported place. Timber joist ceilings and separating / compartment floors. I've seen a lot about. Ceilings to timber joist floors are an established form of ceiling construction, widely used in both new housing and refurbishment. On a gable roof the joists are straightforward. A ceiling joist is very important for hanging objects in the garage. Locate ceiling joists if not exposed. .over the ceiling joists, so that short joists can be tied to the rafters like the rest of the house. Laying out the ceiling joist for a hip roof rafter framing system can be mind boggling, especially if you're planning on lapping ceiling joists and rafters.

Are you hanging from a single joist or from a rail that is connected to multiple joists? This is the distance between joist centres. How are ceiling joists connected to beams? 8', 10', 12', 14', 16'. 2x10 spf#2 joists @ 16 o.c.

Ceiling Joists
Ceiling Joists from www.builderbill-diy-help.com
Ceiling joist size is determined by the amount of weight the joist must carry and the span the joist covers from one wall to the other. A ceiling joist is perfect for this job. Tap on the plaster or drywall ceiling until you hear a solid thud, or use a stud nder. Learn a little more about how to frame and build a home or structure constructed out of wood, lumber or even engineered lumber. Laying out the dimensions of a drop ceiling before installation is one the most important aspects of a suspended ceiling installation project. In a house, the underside of the upper floor ceiling joist framework, forms the frame for ceiling materials. A simplified layout of joists in a hip roof. Ceiling joists are sized similar to floor joists with the span being driven by the joist spacing, joist depth, and intended room/space utilized above.

Laying out the ceiling joist for a hip roof ra.

Laying out the ceiling joist for a hip roof ra. + ceiling layout and framing after you assemble and erect the walls, what is the next step? Are you hanging from a single joist or from a rail that is connected to multiple joists? Other than the ceiling joists is there something i can do to beef up the rafters? With joist hangers and metal strapping. Ceiling joists also help to anchor the walls to prevent them from collapsing inwards ceiling joist size. Start the layout from the logical spot, which is not necessarily the here, starting the layout at the double joist that acts as the header for the stair stringers makes much more. 2x10 spf#2 joists @ 16 o.c. This arrangement makes it easier to install pipes, flues, or ducts. Timber joist ceilings and separating / compartment floors. Laying out the ceiling joist for a hip roof ra supporting ceiling joists from rafters. Learn a little more about how to frame and build a home or structure constructed out of wood, lumber or even engineered lumber. Though it's an uncomfortable sensation, in most cases it doesn't suggest an imminent structural failure.

Ceilings to timber joist floors are an established form of ceiling construction, widely used in both new housing and refurbishment. Joists are at times supported by a beam and will be repetitive in its layout. I'm ready to start installing 1x6 beaded pine t&g on my porch ceiling and am looking for some tips on layout. A ceiling joist is very important for hanging objects in the garage. Though it's an uncomfortable sensation, in most cases it doesn't suggest an imminent structural failure.

A Layout And Dimensions Of The Field 2 4 W Timber Floor B Download Scientific Diagram
A Layout And Dimensions Of The Field 2 4 W Timber Floor B Download Scientific Diagram from www.researchgate.net
Are you hanging from a single joist or from a rail that is connected to multiple joists? I've seen a lot about. .over the ceiling joists, so that short joists can be tied to the rafters like the rest of the house. How are ceiling joists connected to beams? The table in figure 44‑2 gives allowable ceiling joist spans. Installing drywall ceiling can be done either on metal studs or on wood studs. Joists are at times supported by a beam and will be repetitive in its layout. Learn a little more about how to frame and build a home or structure constructed out of wood, lumber or even engineered lumber.

Though it's an uncomfortable sensation, in most cases it doesn't suggest an imminent structural failure.

2x10 spf#2 joists @ 16 o.c. Start the layout from the logical spot, which is not necessarily the here, starting the layout at the double joist that acts as the header for the stair stringers makes much more. Ceilings to timber joist floors are an established form of ceiling construction, widely used in both new housing and refurbishment. + ceiling layout and framing after you assemble and erect the walls, what is the next step? A simplified layout of joists in a hip roof. Laying out the ceiling joist for a hip roof rafter framing system can be mind boggling, especially if you're planning on lapping ceiling joists and rafters. 8', 10', 12', 14', 16'. This arrangement makes it easier to install pipes, flues, or ducts. Lay a ceiling joist on top of the wall plate, which similarly should be marked with layout lines in accordance with your design plans. Ceiling joists also help to anchor the walls to prevent them from collapsing inwards ceiling joist size. Hip rafter and ceiling joists layout tips. Are you hanging from a single joist or from a rail that is connected to multiple joists? Tap on the plaster or drywall ceiling until you hear a solid thud, or use a stud nder.

0 comments